根据《烈士褒扬条例》《烈士纪念设施保护管理办法》等有关规定,现划定岳阳县七处烈士纪念设施保护范围如下。
一、大云山烈士纪念园
地址:大云山国家森林公园内;
保护级别:未定级;
保护范围:以大云山烈士纪念园四周护栏为界,包含入园台阶。保护范围的面积为565.17平方米。(详见附件1)
二、大云山烈士纪念塔
地址:大云山国家森林公园内;
保护级别:未定级;
保护范围:以大云山烈士纪念塔四周护栏为界。保护范围的面积为598.10平方米。(详见附件2)
三、张谷英镇烈士纪念园
地址:张谷英镇天龙村桐木水库东山麓;
保护级别:未定级;
保护范围:东北侧、东侧以桐木水库大坝为界,南侧以桐木水库溢洪道为界,西北侧、西侧以山麓为界。保护范围的面积为1223.9平方米。(详见附件3)
四、月田镇皇帽山烈士纪念园
地址:月田镇花苗村皇帽山;
保护级别:未定级;
保护范围:以月田镇皇帽山烈士纪念园勘测定界图划定的红线为准。保护范围的面积为612.2平方米。(详见附件4)
五、公田镇板桥烈士纪念园
地址:公田镇大塅村;
保护级别:未定级;
保护范围:以公田镇板桥烈士纪念园勘测定界图划定的红线图为准。保护范围的面积为172.36平方米。(详见附件5)
六、杨林街镇蓝泽烈士墓
地址:杨林街镇兰泽村;
保护级别:未定级;
保护范围:东北侧、东南侧、西北侧以杨林街镇蓝泽烈士墓围墙为界,西南侧以037县道为界。保护范围的面积为1743平方米。(详见附件6)
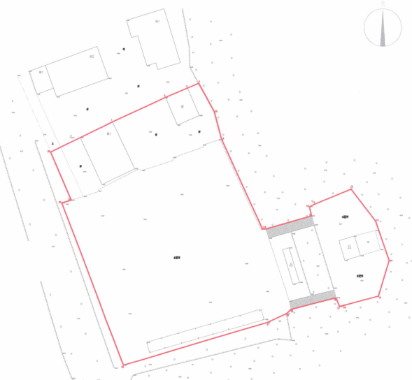
七、黄沙街镇刘士奇烈士纪念园
地址:黄沙街镇刘士奇村;
保护级别:未定级;
保护范围:以黄沙街镇刘士奇烈士纪念园勘测定界图划定的红线为准。保护范围的面积为3244.1平方米。(详见附件7)
八、保护要求
烈士纪念设施保护范围内的土地和设施受法律保护,任何组织和个人不得在烈士纪念设施保护范围内从事与纪念英烈无关或者有损纪念英烈环境和氛围的活动,不得侵占烈士纪念设施保护范围内的土地和设施,不得破坏、污损烈士纪念设施,不得在烈士纪念设施保护范围内进行其他工程建设。
非法侵占烈士纪念设施保护范围内的土地、设施,破坏、污损烈士纪念设施,或者在烈士纪念设施保护范围内进行其他工程建设,或者在烈士纪念设施保护范围内为不符合安葬条件的人员修建纪念设施、安葬或安放骨灰或者遗体的,由县退役军人事务局责令改正,恢复原状、原貌;造成损失的,依法承担民事责任;被侵占、破坏、污损的纪念设施属于文物保护单位的,依照《中华人民共和国文物保护法》的规定处罚;构成违反治安管理行为的,由公安机关依法给予治安管理处罚;涉嫌犯罪的,移送司法机关处理。
附件:1.大云山烈士纪念园保护范围示意图
2.大云山烈士纪念塔保护范围示意图
3.张谷英镇烈士纪念园保护范围示意图
4.月田镇皇帽山烈士纪念园保护范围示意图
5.公田镇板桥烈士纪念园保护范围示意图
6.杨林街镇蓝泽烈士墓保护范围示意图
7.黄沙街镇刘士奇烈士纪念园保护范围示意图
岳阳县人民政府
2025年1月23日
附件1
大云山烈士纪念园保护范围示意图

:大云山烈士纪念园保护范围
附件2
大云山烈士纪念塔保护范围示意图

:
大云山烈士纪念塔保护范围
附件3
张谷英镇烈士纪念园保护范围示意图

:张谷英镇烈士纪念园保护范围
附件4
月田镇皇帽山烈士纪念园保护范围示意图

:月田镇皇帽山烈士纪念园保护范围
附件5
公田镇板桥烈士纪念园保护范围示意图

:公田镇板桥烈士纪念园保护范围
附件6
杨林街镇蓝泽烈士墓保护范围示意图

:杨林街镇蓝泽烈士墓保护范围
附件7
黄沙街镇刘士奇烈士纪念园保护范围示意图

:黄沙街镇刘士奇烈士纪念园保护范围